Skip to content

samh.blog

  • ABOUT
  • WORK
    • ARCHITECTURE
    • HISTORY
    • PHILOSOPHY
    • IMMERSIVE DESIGN
    • REMIX IN THE AGE OF AI
    • SKETCHES
12/9/2024

OPEN AIR PAVILION

Share this:

  • Share on X (Opens in new window) X
  • Share on Facebook (Opens in new window) Facebook
Like Loading…
Sam
ARCHITECTURE, DESIGN
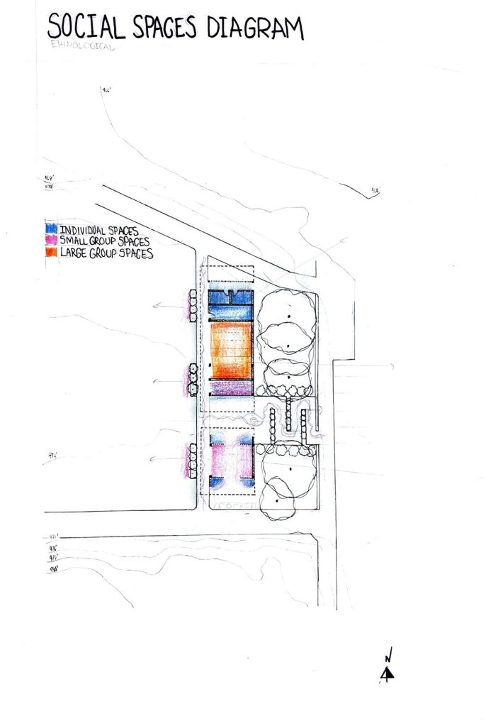
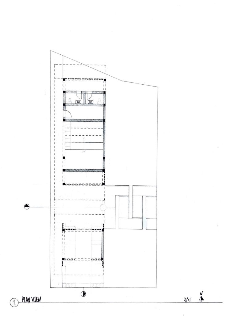
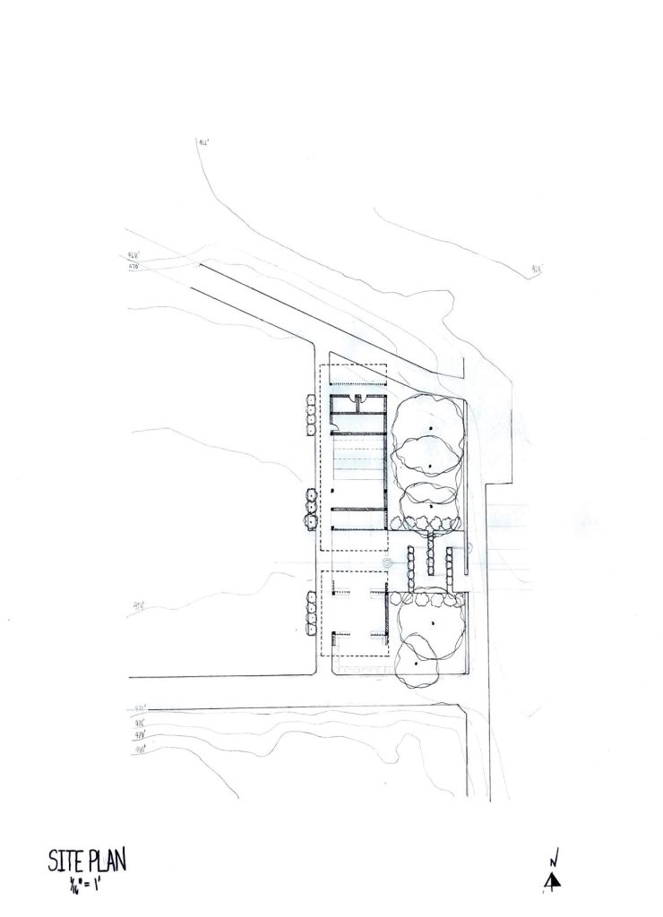
Hand Drafting, STUDIO 680, Summer 2024
←Previous
Next→

Blog at WordPress.com.

 

Loading Comments...
 

    • Comment
    • Reblog
    • Subscribe Subscribed
      • samh.blog
      • Already have a WordPress.com account? Log in now.
      • samh.blog
      • Subscribe Subscribed
      • Sign up
      • Log in
      • Copy shortlink
      • Report this content
      • View post in Reader
      • Manage subscriptions
      • Collapse this bar
    %d